Skip to main content

Vilas do Palácio

Morumbi | São Paulo - SP

Projeto Vilas do Palácio

Ficha Técnica

  • Status da obra: Obra
  • Tipo: Residencial
  • Arquitetura: Sader & Heer Arquitetura
  • Paisagismo: Roberta Ventura
  • Área do terreno: 2712 m²
  • Metragens: 552,62 m²

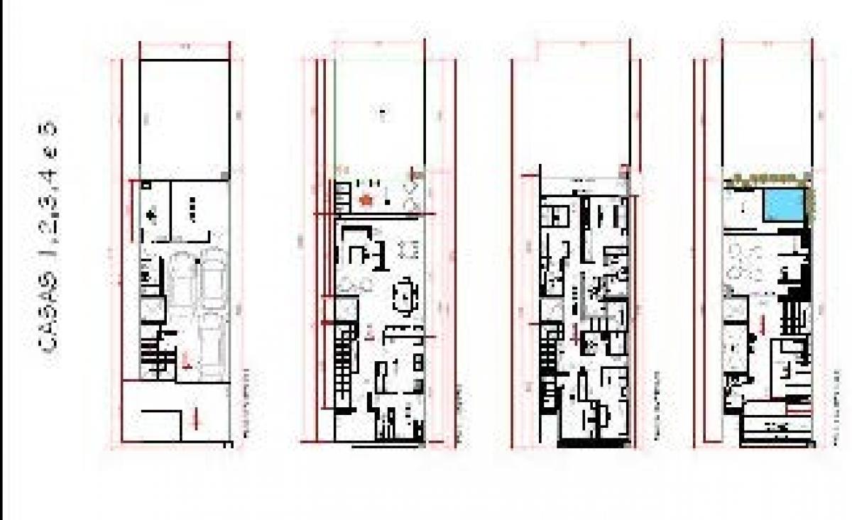
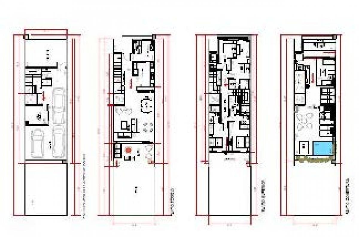
Plantas

Ampliar

Ampliar

Ampliar

Ampliar


Localização

Morumbi - São Paulo - SP

Rua Doutor Celso Dario Guimarães, 165 - Morumbi - São Paulo, SP


Andamento da obra: 0%

    Preparo do terreno: 90%
    Fundação: 0%
    Estrututura: 0%
    Alvenaria: 0%
    Instalações: 0%
    Fachada: 0%
    Acabamentos: 0%

    Contato