Skip to main content

Jardins da Fazenda

Fazenda Morumbi | São Paulo - SP

Projeto Jardins da Fazenda

Ficha Técnica

  • Status da obra: Lançamento
  • Tipo: Residencial
  • Arquitetura: AGRES Arquitetura
  • Paisagismo: Roberta Ventura
  • Decoração: Studio Flying
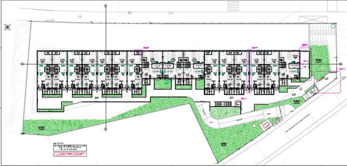
  • Área do terreno: 4236 m²
  • Metragens: 375 á 549,8m²

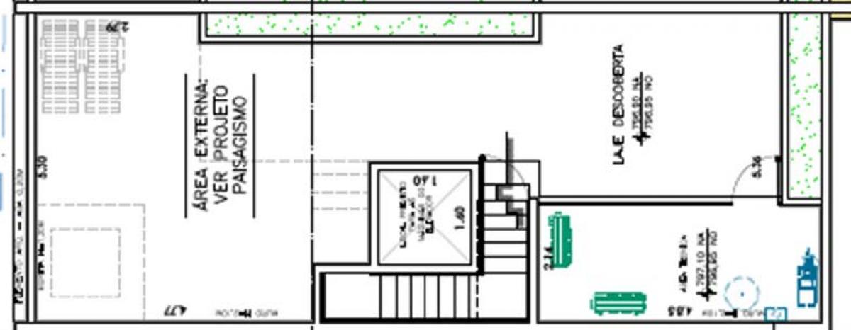
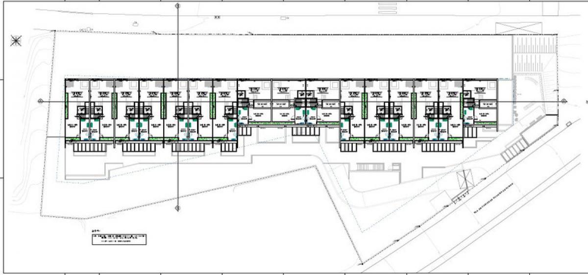
Plantas

Ampliar

Ampliar

Ampliar

Ampliar

Ampliar

Ampliar

Ampliar

Ampliar


Localização

Fazenda Morumbi - São Paulo - SP

Rua Doutor Carlos de Oliveira Coutinho, 100 - Fazenda Morumbi - São Paulo, SP


Andamento da obra: 10%

    Preparo do terreno: 20%
    Fundação: 5%
    Estrututura: 10%
    Alvenaria: 0%
    Instalações: 0%
    Fachada: 0%
    Acabamentos: 0%

    Contato